山東能源龍礦集團山東龍鄆煤業有限公“10·20” 重大沖擊地壓事故調查報告
2018 年10 月20 日22 時37 分51.79 秒,山東能源龍礦集團山東龍鄆煤業有限公司1303 工作面泄水巷及3 號聯絡巷發生重大沖擊地壓①事故,造成21 人死亡、4 人受傷,直接經濟損失5639.8 萬元。
事故發生后,黨中央、國務院領導同志作出重要批示,山東省委書記劉家義、省長龔正、副省長王書堅帶領有關部門負責人和專家趕到現場,成立了以王書堅副省長為組長、有關部門及菏澤市組成的應急救援指揮部。應急管理部黨組書記黃明多次與救援現場視頻連線,安排部署搶險救援,派出應急管理部副部長、國家煤礦安監局局長黃玉治和國家煤礦安監局副局長桂來保帶領的工作組,指導協調應急救援工作。經 9 天全力搜救,至 10 月 29 日 15 時 30 分,最后 1 名遇難人員升井,救援工作結束

依據《中華人民共和國安全生產法》《煤礦安全監察條例》(國務院令第 296 號)、《生產安全事故報告和調查處理條例》(國務院令第 493 號)等法律法規,經山東省委常委會研究決定,由山東煤礦安全監察局(以下簡稱山東煤礦安監局)牽頭,組織省公安廳、應急管理廳、總工會、能源局、菏澤市人民政府等有關單位和部門,成立山東龍鄆煤業有限公司“10·20”重大沖擊地壓事故調查組(以下簡稱事故調查組),邀請國內知名教授、專家組成專家組參與事故調查。事故調查組下設技術組、管理組和綜合組。同時,省紀委省監委成立山東龍鄆煤業有限公司“10·20”重大沖擊地壓事故專門工作組,與事故調查組共同開展工作。
事故調查組按照“科學嚴謹、依法依規、實事求是、注重實效”的原則,通過現場勘查、專家論證、調查取證,查明了事故發生的經過、原因、人員傷亡和直接經濟損失,認定了事故性質和責任,提出了對有關責任人員、責任單位的處理建議及整改防范措施。
一、事故單位基本情況
(一)上級公司基本情
山東能源集團有限公司。
山東能源集團有限公司(以下簡稱山東能源)是山東省屬國有獨資公司,2011 年 3 月掛牌成立,2015 年 8 月改建為國有資本投資公司,注冊資本 169.6 億元。山東能源下轄 6 個礦業集團、2個省外區域能化公司、12 個非煤專業化公司,在冊職工 16 萬人。共有生產礦井 67 處,核定生產能力 13388 萬噸/年,2017 年生產原煤 10562 萬噸。龍口礦業集團有限公司為山東能源全資子公司。
龍口礦業集團有限公司。
龍口礦業集團有限公司前身為龍口煤炭生產建設指揮部,始建于 1968 年 10 月,1987 年 5 月成立龍口礦務局,2003 年 3 月改制為龍口礦業集團有限公司(以下簡稱龍礦集團),2011 年 3 月成為山東能源權屬公司。企業資產總額 225 億元,員工 1.1 萬人,現有 4 處生產礦井,其中,山東省內 2 處,核定能力 460 萬噸/年,2017 年生產原煤 399.7 萬噸,2018 年 1~9 月生產原煤 342.7 萬噸。龍礦集團設置了安全監察局、生產技術部、機電管理處等生產安全機構,負責生產技術和安全監督管理工作。
(二)山東龍鄆煤業有限公司基本情況
礦井歷史沿革。
山東龍鄆煤業有限公司前身為山東省鄆城煤礦,位于菏澤市鄆城縣潘渡鎮境內,南距鄆城縣城 6 千米。原隸屬于山東省齊魯新航集團有限責任公司,2006 年 9 月開工建設。2011 年 1 月起,山東省鄆城煤礦由龍礦集團托管。2016 年 6 月,龍礦集團與山東省齊魯新航集團有限責任公司簽訂了《山東省鄆城煤礦移交接管劃轉協議》,礦井的生產建設主體變更為龍礦集團。2017 年 4 月,礦井正式投產,設計生產能力 240 萬噸/年。2017 年 12 月,礦井更名為山東龍鄆煤業有限公司(以下簡稱龍鄆煤礦)。2017 年 5~12 月,生產原煤 160 萬噸;2018 年 1~9 月,生產原煤 177.73萬噸。礦井采礦許可證、安全生產許可證、工商營業執照齊全有效。礦井開采條件。井田位于巨野煤田最北端,屬全隱蔽的華北型石炭、二疊系煤田。井田范圍由 20 個拐點坐標圈定,面積 198.3 平方公里,開采標高-450~-1750 米。井田含煤地層為山西組和太原組,其中主采煤層為山西組 3 煤層。井田處于鄆城斷裂、巨野斷裂、曹縣斷裂和汶泗斷裂的“井”字形中間區內,井田的典型構造特征為斷塊型。井田總體呈走向近南北、傾向東的單斜構造,勘查發現全井田共有斷層 130 條,其中,一采區 37 條。見圖 1。
井田含水層自上而下主要有第四系砂礫層、新近系砂層、二疊系石盒子組砂巖含水層、山西組 3 煤層頂底板砂巖、太原組三灰、十灰、奧陶系灰巖等含水層。其中對工作面有直接充水影響的含水層為 3 煤層頂底板砂巖及太原組三灰含水層,間接充水含水層為石盒子組砂巖含水層、十灰、奧灰含水層。礦井水文地質類型為復雜,礦井正常涌水量為 879.6 立方米/小時,最大涌水量1196.3 立方米/小時。礦井為低瓦斯礦井,3 煤層煤塵具有爆炸危險性,煤層自然發火等級為Ⅱ類自燃,最短自然發火期為 57 天。沖擊傾向性鑒定 3 煤層有弱沖擊傾向性,頂板有強沖擊傾向性,底板有弱沖擊傾向性;3 煤層經沖擊危險性評價為沖擊地壓煤層,礦井為沖擊地壓礦井。

1 礦井區域構造概要圖
礦井生產系統。
(1)開拓開采系統。礦井采用立井單水平開拓,中央并列抽出式通風。工業場地內布置主井、副井和風井三個井筒,井底車場水平-845 米,主井箕斗提升,副井罐籠提升。井田劃分 5 個采區,現開采一采區。采煤方法為走向長壁綜采放頂煤開采,煤巷采用綜掘施工,巖巷采用炮掘施工。
(2)提升運輸系統。主井采用立井箕斗提升,裝備兩套 JKMD -4.5×4 型落地式多繩提升機;副井采用立井罐籠提升,擔負人員、物料等提升任務,裝備一套 JKMD-4.5×4 型落地式多繩提升機。井下煤炭運輸采用帶式輸送機運輸,水平大巷采用蓄電池機車軌道運輸,上下山及軌道順槽采用齒軌車和單軌吊運輸。
(3)供電系統。礦井設有 110 千伏變電站一座,采用雙回路 110 千伏電源進線,分別引自水滸 220 千伏變電站和潘渡 220 千伏變電所。井下布置四個變電所,其中,一采區變電所及一采區下部變電所主要向一采區的采掘工作面供電。礦井主、副井提升系統、主要通風機、空氣壓縮機、采區變電所、掘進工作面局部通風機配電點等均為雙回路供電。
(4)通風系統。礦井采用中央并列抽出式通風,主、副井進風,風井回風。地面通風機房裝備 FBCDZ-No33 型對旋軸流主要通風機兩臺,一臺工作,一臺備用。爆炸物品庫、采區變電所、采掘工作面均采用獨立通風。
(5)防滅火系統。礦井設有防滅火注漿系統、固定式二氧化碳防滅火裝置、井下移動式注氮系統、束管監測系統及消防供水系統,井上、下設有消防材料庫,配備消防器材。
(6)排水系統。礦井建有排水系統,中央泵房和擴建泵房均設置在-845 米水平,中央水倉總容量為 8839 立方米。中央泵房安裝 7 臺 MD420-96×10 型水泵,排水管路經副井井筒到達地面;擴建泵房安裝 5 臺 MD420-96×11 型水泵,排水管路經主井井筒到達地面。
(7)消防防塵系統。礦井地面建有 771 立方米和 1274 立方米的靜壓水池各 1 個,水源取自礦井水處理站。井下防塵灑水采用靜壓供水,供水管沿副井井筒敷設至井底車場降壓后供給各用水地點。
(8)制冷系統。礦井采用井下集中式降溫,在井底車場設置井下降溫硐室,在工業場地設置冷卻機房,各采掘工作面安裝空冷器提供冷風降溫。
安全避險系統。
(1)壓風自救系統。壓風機房安裝 5 臺空氣壓縮機,主干管路采用Φ273 毫米無縫鋼管,沿軌道大巷敷設,采掘工作面采用Φ108 毫米或Φ159 毫米管路。
(2)供水施救系統。供水水源采用深水源井、供水管直供,符合飲用水標準,管路沿副井井筒敷設至井底車場、大巷及采掘地點,采掘工作面配備壓風供水自救裝置。
(3)安全監控系統。礦井安裝 KJ95X 煤礦綜合監控系統,對井下瓦斯、一氧化碳、粉塵、風速、溫度、局部通風機開停等實時在線監測。
(4)人員位置監測系統。礦井安裝 KJ69J 人員位置監測系統,對井下作業區域人員動態分布實時跟蹤管理。
(5)通信聯絡系統。礦井安裝 KTJ115 調度通信系統,與主要硐室、生產場所、應急救援單位、井口保健站、應急物資倉直撥;井下安裝了語音報警系統。
(6)緊急避險系統。礦井設置 1 個永久避難硐室和 1 個采區避難硐室。
安全生產管理。
龍鄆煤礦建立了安全責任體系,制定了安全規章制度和操作規程,設置了專職安全生產管理機構,配備了專職安全生產管理人員。主要負責人和管理人員取得了安全生產知識和管理能力考核合格證明;特種作業人員經考核合格,取得了特種作業操作資格證書;從業人員經過安全生產教育培訓,取得了相應安全培訓合格證明。
勞動組織。
龍鄆煤礦現有職工 2370 人,用工形式為合同制和勞務聘用制,勞動組織為“三八”制。制定了《山東龍鄆煤業有限公司 2018 年礦井定編定員方案》,并報龍礦集團批準。
沖擊地壓防治體系。
(1)防沖機構和隊伍建設。礦井成立了以總經理為組長,分管副總經理、總工程師為副組長,副總工程師、單位(部室)負責人為成員的防沖領導小組,設置了專職防沖副總工程師,成立了防沖辦公室和專職防沖隊伍。龍礦集團工程建設公司勘探測量分公司鄆城項目部(以下簡稱防沖項目部)負責防沖卸壓工作,由龍鄆煤礦統一管理。
(2)沖擊危險性評價及防沖設計。2013 年 6 月,礦井委托華北科技學院編制了《鄆城煤礦一(首)采區沖擊地壓危險性評價報告及防沖設計》;2015 年 8 月,委托華北科技學院編制了《鄆城煤礦 3 煤層沖擊危險性評價及防沖設計》,井下采掘工作面均進行了沖擊危險性評價。
(3)沖擊危險性監測。礦井裝備了覆蓋全礦井的ARAMIS M/E 微震監測系統1套、KJ551微震監測系統1套,裝備了KJ24頂板與沖擊地壓監測系統6套、KJ550應力在線監測系統4套、沖擊地壓多因素綜合監測預警平臺1套。
(4)卸壓及裝備。采取大直徑鉆孔、煤層爆破、頂板爆破預裂等方法對沖擊危險采掘工作面進行預卸壓和解危。礦井配備30臺卸壓鉆機。
應急管理。
礦井成立了應急管理領導小組,公司總經理任組長,下設應急管理辦公室,安全副總工程師兼應急辦主任,配備專兼職應急管理人員 4 名。2018 年 1 月編制了《生產安全事故應急預案》,制定了 2018 年度生產安全事故應急演練計劃,2018 年 1~9 月組織應急演練 4 次;礦井與龍礦集團礦山救護大隊簽訂了救護協議,救護大隊派救護中隊駐礦服務。
二、事故區域基本情況
事故發生在一采區南翼 1303 工作面泄水巷及 3 號聯絡巷。(一)巷道布置1303 工作面泄水巷及 3 號聯絡巷位置。1303 工作面泄水巷及 3 號聯絡巷位于一采區南翼,其北部為一采區膠帶、回風及軌道下山,南至 G220 國道保護煤柱,東部為未采掘區域,西鄰未回采的 1303 工作面。1303 工作面泄水巷及 3 號聯絡巷設計長度 1191 米(平距),其中:3 號聯絡巷設計長度251 米,埋深 1027~1067 米,采用綜掘沿底板施工。1303 工作面泄水巷及 3 號聯絡巷鄰近開采情況。沖擊地壓發生時,事故區域附近無采掘活動。3 號聯絡巷下段掘進工作面距離正在回撤順槽設備的 1301 采煤工作面(10 月 15 日停采)1845 米,距離正在生產的 1302(上)采煤工作面 4554米,距離正在掘進的 1305 工作面膠帶順槽聯絡巷、1306 工作面膠帶順槽分別為 2842 米、3603 米。見圖 2。
1303 工作面泄水巷及 3 號聯絡巷施工情況。2018 年 9 月 9 日,3 號聯絡巷與 1303 工作面泄水巷相向施工,至 9 月 29 日,3 號聯絡巷(上段)施工 174 米,在距離 1303 工作面泄水巷掘進迎頭直線距離為 158 米時停止施工。10 月 10 日,1303 工作面泄水巷施工至 1303 工作面泄水巷與 3 號聯絡巷拐點(以下簡稱拐點)處,從下往上開始施工 3 號聯絡巷下段,至沖擊地壓發生時已施工 74 米,剩余 3 米貫通。
(二)地質條件
斷層構造情況。
一采區內主要斷層自西向東分別為紅廟東斷層(H=30~50米)、八里莊斷層(H=160~180 米)、田橋鄆支斷層(H=30~390米),3 號聯絡巷東側 384~800 米范圍存在田橋鄆支斷層組。井田東部田橋斷層(H=500 米)距離 3 號聯絡巷沖擊區域約 2.5 千米。開采煤層位于八里莊斷層與田橋斷層控制的地壘構造內,該區域構造應力集中。
煤層及頂底板情況。
該區域 3 煤賦存較穩定,結構較復雜,煤層厚度 6.6~7.5米,平均 7.0 米,煤層傾角 8~15 度,平均 10 度。該煤層含 2 層夾矸,第一層夾矸上距煤層頂板 2.4 米,厚度 0.03 米,為泥質砂巖;第二層夾矸下距煤層底板平均 0.36 米,厚度 0.15 米,為砂質泥巖。 1303 工作面泄水巷及 3 號聯絡巷埋藏深度 1027~1067

2 1303 工作面泄水巷掘進工作面到各采掘地點的距離
米。直接頂板以泥巖為主,局部見粉砂巖,厚度 1.5 米,泥巖強度指數為 30~60 兆帕,屬中等~穩定巖體;基本頂以細砂巖為主,厚度 11.6米,細砂巖強度指數為 35~59 兆帕。直接底板以泥巖為主,粉砂巖次之,厚度 1.2 米,粉砂巖、泥巖強度指數 20~42 兆帕,屬中等穩定~穩定巖體。基本底以泥巖、細砂巖為主,厚度 10.4 米,泥巖強度指數 20~42 兆帕,細砂巖強度指數為 35~59 兆帕。
水文地質情況。
井田含水層自上而下主要有第四系砂礫層、新近系砂層、二疊系石盒子組砂巖含水層、山西組 3 煤層頂底板砂巖、太原組三灰、十灰、奧陶系灰巖等含水層。其中,對工作面有直接充水影響的含水層為 3 煤層頂底板砂巖及太原組三灰含水層,間接充水含水層為石盒子組砂巖含水層、十灰、奧灰含水層。2013 年 3 月至2018 年 9 月,開采區域頂板疏放水總量達 1464 萬立方米,頂板砂巖水水位降低 30 米。
(三)支護情況
根據龍鄆煤礦與大連大學建筑工程學院開展的“深井復雜地質條件沖擊地層巷道支護研究與實踐”項目,優化確定了巷道支護形式采用錨網索+U29 梁(W 型鋼帶)的支護形式,頂板采用 U29錨索梁、左旋高強錨桿支護,幫部采用錨桿(索)+W 鋼帶支護,設計支護強度為 608 千牛/平方米。巷道荒斷面寬 5.4 米,高 4.1 米,荒斷面面積 22.14 平方米;凈斷面寬 5.2 米,高 4 米,凈斷面面積 20.8 平方米。2018 年 6 月 29 日至 9 月 30 日,1303 工作面泄水巷工程質量驗收 731.5 米,結果為合格;月度工程質量過程檢查中,檢測錨桿、錨索拉力 16 次,均符合設計要求。10 月 17 日,3 號聯絡巷上段工程質量驗收 174.3 米,結果為合格;檢測錨桿、錨索拉力 3 次,均符合設計要求;3 號聯絡巷下段檢測錨桿、錨索拉力測試 2 次,均符合設計要求。
(四)沖擊地壓防治
沖擊危險性評價、設計。
2018 年 5 月,龍鄆煤礦委托北京科技大學編制《山東龍鄆煤業有限公司 1305 工作面及 1303 工作面泄水巷掘進沖擊危險性評價與防沖設計》,經專家評審后,2018 年 6 月,礦井專門編制了《1303 泄水巷及聯絡巷掘進期間防沖設計》,并經礦總工程師批準。
沖擊地壓監測預警。
1303 工作面泄水巷及 3 號聯絡巷掘進期間采用鉆屑法檢測、微震監測、應力在線監測相結合的沖擊地壓監測方法。
(1)鉆屑法檢測。在迎頭及迎頭后 2~8 米范圍內,對掘進迎頭及兩幫進行煤粉檢測,巷道每掘進 11 米進行一次檢測。2018年10 月,共施工 20 次煤粉檢測鉆孔,實際煤粉量均低于臨界值。(2)微震監測。1303 工作面軌道順槽、膠帶順槽均安設ARAMIS 微震監測拾震器和傳感器各 1 個,用于 1303 工作面及 1303 工作面泄水巷區域的微震監測。10 月 1~20 日,礦井微震監測系統未檢測到異常情況。1303 工作面泄水巷及 3 號聯絡巷區域共監測微震事件 51 個,最大能量事件 1.6×103 焦耳,發生時間為 2018年10 月 18 日 20 時 20 分。
(3)應力在線監測。1303 工作面泄水巷及 3 號聯絡巷采用KJ24 應力在線監測系統進行煤體應力監測。10 月 1~20 日,應力監測最大值 7.7 兆帕,上升最大 0.3 兆帕,均未達到預警值。
貫通卸壓。
9 月 29 日,3 號聯絡巷上段停止掘進后,在迎頭施工了 3 個超前卸壓鉆孔,孔徑 125 毫米,孔深 25 米;兩幫按照設計施工了卸壓鉆孔。10 月 15 日早班,3 號聯絡巷下段掘進迎頭距離貫通點 50 米時,綜掘隊在迎頭施工 3 個超前卸壓鉆孔,孔徑 125 毫米,孔深25 米,實現與貫通點已經施工的超前卸壓鉆孔貫通;10 月 17 日早班、10 月 20 日早班,分別在迎頭補打 2 個、3 個超前卸壓孔。截至 10 月 20 日早班,幫部卸壓鉆孔也已跟進施工至迎頭。
個體防護。
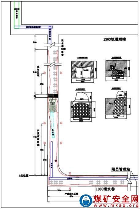
《沖擊危險區封閉、準入及限員制度》和《1303 工作面泄水巷掘進工作面作業規程》規定:“掘進工作面割煤期間及割煤后15 分鐘內,迎頭往外 50 米范圍以內,除掘進機司機、掘進機二運轉載機看護人員外,嚴禁無關人員在此處逗留,并在進入工作面迎頭向外 150 米處懸掛‘沖擊危險區域、嚴禁人員進入’牌板,設置限員準入管理站,警戒區域內作業人員不得超過 26 人”。限員管理站設置在拐點以外 100 米處,距迎頭 174 米,管理站放置 10 件防沖服。事故發生時,管理站以里有 24 人。見圖 3。
三、事故經過和應急救援過程
(一)事故經過
事故當班,綜掘隊和防沖項目部在 1303 工作面泄水巷及 3 號聯絡巷施工。
綜掘隊施工情況。10 月 20 日中班 14 時,綜掘隊黨支部書記張旭鑫、副隊長王戰勝組織召開班前會,安排當班工作,當班出勤 28 人(含 3 名管理人員),井下分成兩隊施工。掘一隊 16 人,負責 3 號聯絡巷正常掘進,其中,掘進工 12 人(含掘進機司機 1 人)、電工 1 人、皮帶機司機 3 人;掘二隊 7 人,負責距離拐點 155 米以外砌筑水溝;機電班 2 名機電工負責外圍機電設備維護;跟班副隊長王戰勝、技術副隊長遲少平、驗收員夏付人等 3 名管理人員負責當班安全管理、技術指導、工程驗收等工作。16 時,班長張紅義帶領掘一隊全班人員到達 3 號聯絡巷,開始綜掘施工。21 時 40 分,區隊值班人員張旭鑫接到遲少平匯報,本班掘一隊截割完第三排頂部,隨后進行頂部支護。事故發生時,掘一隊已完成頂部支護,開始準備幫部支護,為方便幫部支護,掘進機司機正在調整機頭位置。班長張紅義在掘進機后整理風筒,聽到轟的一聲,感覺被沖擊一下就失去知覺了,后被救援人員救出。事故發生時,

圖 3 事故發生前人員位置分布圖
掘二隊 7 人正在距離拐點 155 米以外砌筑水溝,當班驗收員夏付人也在這個位置,沖擊氣浪將其安全帽沖掉。發生事故后,夏付人和其他 7 人一起往外撤。
防沖項目部施工情況。
10 月 20 日中班 14 時 30 分,防沖項目部機臺長韓軍峰組織召開班前會,當班出勤 18 人。安排 7 名工人分兩組到 3 號聯絡巷下段掘進機二運尾部打卸壓孔。其中,一組由班長李學靈帶領,姜泰、趙則忠、申傳江為成員;另一組由班長劉金收帶領,宗洪振、張巨連為成員,按照每組 3 個鉆孔組織施工。其余 11 人安排3 號聯絡巷上段搬運兩部整套卸壓鉆機到 1303 工作面膠帶順槽。17 時左右,7 名鉆孔施工人員到達 3 號聯絡巷施工地點。22 時 20 分左右,李學靈現場電話匯報井下施工正常,預計中班完成 6 個鉆孔,其他正常。事故發生時,兩組人員正在施工幫部卸壓鉆孔。
(二)事故信息報告
2018 年 10 月 20 日 22 時 43 分、22 時 54 分,礦調度室值班員孫若海先后接到綜采一隊副工長袁嶺、安監員劉順偉報告,井下 3 號聯絡巷發生沖擊。
23 時 8 分至 23 時 18 分,生產副總經理宋文德,執行董事、總經理李仁新,副總經理、安監處長孫培杰,副總經理于永學等先后接到事故報告,龍鄆煤礦立即啟動應急預案。
21 日 0 時 25 分、2 時 46 分,龍鄆煤礦分別向龍礦集團、山東能源進行了報告。龍鄆煤礦于 21 日 2 時 16 分、2 時 28 分、2 時 52 分、2 時59分先后向原山東省煤炭工業局、山東煤礦安全監察局魯東監察分局、山東煤礦安監局、菏澤市煤炭管理局電話報告了事故。

圖 4 傷亡人員所在位置及巷道破壞位置圖
(三)現場應急響應及處置
事故發生后,山東省成立了以王書堅副省長為組長的龍鄆煤礦“10·20”沖擊地壓應急救援指揮部,下設現場救援、醫療救護、善后處理等九個工作組,調集龍礦集團、臨礦集團、肥礦集團、新礦集團、兗礦集團、淄礦集團、棗礦集團救護大隊趕到事故現場,參加救援處置工作。至 29 日 15 時 30 分,救援人員陸續找到 22 名被困礦工并運送至地面,救援工作結束,其中 1 人生還,21 人遇難。傷亡人員所在位置見圖 4。
救援過程中,共出動 7 支專職礦山救護大隊 192 人,井下救援施工人員、公安、武警、消防、醫療等近 2000 人參加搶險救援。在救援指揮部的嚴密組織領導下,參與搶險救援的廣大救護隊員、施工人員、公安干警、醫護和后勤保障人員等,精誠團結、通力協作、密切配合,保證了應急處置工作的有序開展。
(四)事故善后處理情況
善后處理工作組在應急救援指揮部的領導下,組織了 21 個工作小組,開展遇難人員家屬安撫和賠償工作,截止 10 月 31 日,已按相關規定全部處理完畢遇難礦工善后事宜。
四、事故現場勘查情況
1303 工作面泄水巷與 3 號聯絡巷拐點以外 100 米巷道,拐點向上 74 米巷道,共 174 米巷道出現不同程度破壞,其中嚴重段為拐點以外 40 米巷道及拐點向上 74 米巷道,共計 114 米;3 號聯絡巷貫通點向上 174 米巷道出現不同程度破壞,其中嚴重段為貫通點以上 84 米巷道。破壞巷道共計 348 米,其中嚴重破壞段為198 米。巷道破壞位置見圖 4,具體情況如下:
(一)巷道破壞情況
3 號聯絡巷貫通點往上 84 米至 174 米范圍,巷道無明顯變形,錨桿錨索支護狀況良好,兩幫施工的卸壓鉆孔無明顯的塌孔現象。3 號聯絡巷貫通點往上 84 米巷道為嚴重破壞段,破壞主要表現為:巷道頂板明顯下沉,兩幫收斂,頂板錨索梁呈現不同形式的扭曲變形及開裂顯現。貫通點往上 64 米、20 米,實測巷道寬度分別為 3.4 米、3.3 米,高度分別為 2.16 米、2.22 米。貫通點往上 14 米附近左側鼓幫,巷道寬度在 3.3~3.4 米之間,高度在 1.8~2.2 米左右;個別錨索拉斷、錨索梁開裂,錨桿存在彎曲懸吊但無拉斷現象,個別錨桿被勒入頂板煤體,巷道底板沒有大的裂紋顯現,但存在局部底鼓現象,底鼓高度 0.5 米。見圖 5、6。拐點往上到貫通點 74m 巷道兩幫內收 1.5~2.0 米,頂板下沉 1.0~2.5 米,部分頂煤冒落,錨索梁彎曲,掘進機附近頂板破碎,巷道變形嚴重,個別的錨索拉斷、錨索梁開裂,錨桿存在彎曲懸吊但無拉斷現象,個別錨桿被勒入頂板煤體。掘進機后部巷道變形嚴重,頂板垮落至 3 煤層直接頂,平均垮落高度為 2.2 米,兩幫內收、部分頂板錨索梁彎曲懸吊,垮落的煤矸超過原巷道頂板,見圖 6 中的 C-C 斷面。皮帶機位置兩幫內收 2.9 米,頂板垮落至直接頂,直接頂垮落高度最大為 1.5 米,寬度最大為 1.9 米。見圖 6 中的 B-B 斷面。拐點以外 100 米巷道,出現不同程度破壞,其中嚴重段為拐點以外 40 米巷道。嚴重段巷道兩幫內收 1.2 米,直接頂垮落高度最大 2.6 米,寬度最大 3.4 米,見圖 6 中的 A-A 斷面。部分頂板錨索梁彎曲懸吊,垮落的煤矸超過原巷道頂板,存在個別錨索、錨桿拉斷現象。拐點以外 40~100 米巷道的變形主要表現為:頂板錨索梁呈現不同形式的扭曲變形及開裂,巷道頂板出現明顯下沉,兩幫收斂。見圖 5。
(二)設備損壞情況
3 號聯絡巷:掘進迎頭 EBZ200 型懸臂式掘進機截割臂蓋板變形,其后轉載皮帶機被掩埋,掘進機除塵風機變形,DZQ80 帶式轉載機機頭架變形,位于拐點的皮帶機頭電動滾筒被掩埋。
1303 工作面泄水巷:拐點以外 50 米范圍內 DSJ80 皮帶機機尾被埋、沖擊段巷道內皮帶中間件部分變形,CMM2-21 液壓錨桿鉆車被壓,履帶式鉆機被掩埋,單軌吊駕駛室變形,冒落區域后約1000 米風筒損壞。

頂部錨桿被勒入頂板 頂板下沉、錨索梁開裂

頂部錨桿被勒入頂板 頂板下沉、錨索梁開裂

圖 6 事故區域位置及現場巷道破壞素描圖
拉伸頸縮,表明巷道破壞瞬間錨桿、錨索承受了水平載荷作用,頂部煤體在水平沖擊載荷作用下發生碎脹變形,可以推斷頂煤冒落的主要原因是在破壞瞬間,巷道頂部煤體在沖擊載荷作用下發生碎脹變形,導致錨桿、錨索無法對其進行有效約束。
事故具有顯著的震動特征。
(1)經調查詢問 1303 工作面泄水巷附近工作人員,事故發生時,感到強烈的沖擊波、聲響和煤塵飛揚。
(2)10 月 29 日現場勘查時,1303 工作面泄水巷 3 號聯絡巷仍有明顯的悶炮發生。
(3)龍鄆煤礦安裝的 ARAMIS M/E 微震監測系統在 10 月 20日22 時 37 分 51.79 秒監測到一次能量為 2.2×106 焦耳的震動事件,震源位于 1303 軌道順槽與 3 號聯絡巷交叉點以北 61 米處頂板巖層。
巷道破壞具有顯著的突發性。
從遇難人員位置及形態上分析,遇難人員有站立被埋、掘進機司機在座位上直接被埋,人員在遇難前無逃生跡象,表明事故發生在瞬間。
六、事故原因及性質
(一)事故直接原因
龍鄆煤礦 3 煤層及其頂底板具有沖擊傾向性;事故區域埋深1027~1067 米,煤巖體自重應力高;采掘及疏放釋水、3 煤層分岔合并及構造影響、巷道臨近貫通等,形成高應力集中區;采用的防沖措施沒有有效消除沖擊危險,在當班掘進、施工卸壓鉆孔擾動和田橋斷層帶滑移影響下,誘發沖擊地壓事故發生。事故區域具有沖擊危險。龍鄆煤礦 1303 工作面泄水巷及3 號聯絡巷埋藏深度為 1027~1067 米,自重應力高;事故區域具備沖擊地壓發生的應力條件與沖擊傾向性條件。
構造與高應力共同作用。鄆城井田處于鄆城斷裂、巨野斷裂、曹縣斷裂和汶泗斷裂的“井”字形中間區內,井田的典型構造特征為斷塊型,開采區位于八里莊斷層與田橋斷層控制的地壘構造內,該區域構造應力集中,斷裂構造活動頻繁。事故區域處于 3 煤層分岔合并線及構造應力區附近。一采區實測最大水平地應力 34.5 兆帕,是垂直應力的 1.40~2.20 倍。巷道臨近貫通,圍巖處于應力調整期。事故發生于巷道貫通期間,剩余 3 米煤柱,煤柱減小使其周邊應力調整加劇。掘進和幫部卸壓鉆孔施工的擾動作用。掘進和幫部卸壓鉆孔施工對處于應力調整狀態的臨近貫通巷道圍巖具有擾動作用。
田橋斷層帶滑移動載作用。山東地震臺網測定,2018 年10 月 20 日 22 時 37 分 51 秒在山東省菏澤市鄆城縣(北緯 35.61 度,東經 116.02 度)發生 1.5 級近地表、非天然地震動事件,震源位于田橋斷層帶,為本次事故提供了外部動載作用。
(二)事故間接原因
采掘活動對覆巖結構的影響。由于該區域厚表土薄基巖的特殊結構,1300、1301 工作面開采后地表最大下沉 3.1 米,影響范圍波及到事故區域上部,使事故區域的應力狀態受到影響。
地壘構造是指地殼中被兩側傾向相反的正(偶為逆)斷層所界限而中間斷盤上升的槽形斷塊構造。縱向延伸可達數百千米。地壘的形成與地殼的水平拉伸作用有關,常與地塹相間出現。

地震類型判別,依據《地震編目規范 DB/T66-2016》5.2.1.1 “地震類型應根據地震波的初動、主頻、持續時間、振幅比等動力學特征確認。”非天然地震動事件,依據《地震編目規范 DB/T66-2016》表 A.1 地震類型代碼表中條文規定,爆破、塌陷、礦山誘發地震(礦震)都屬于非天然地震動事件。頂板疏放水對地層區域應力分布的影響。龍鄆煤礦頂板巖層富含水,2013 年 3 月至 2018 年 9 月期間,開采采區頂板疏放水總量達 1464 萬立方米,頂板砂巖水水位降低 30 米。頂板砂巖水疏放釋水及前期采掘活動會導致地層區域性應力調整和重新分布,改變了本區域內構造的穩定狀態,并可能造成覆巖大范圍的結構性改變。
巷道支護系統沒有承受住強動載沖擊。事故巷道沿底板托頂煤掘進,上部為頂煤和泥巖組成的復合頂板,節理發育,受到沖擊后易碎脹破壞。從事故現場情況看,礦井按照《煤巷錨桿支護技術規范》設計的巷道支護,但這次沖擊載荷超過現支護的承載能力,造成事故區域巷道破壞。
龍鄆煤礦對卸壓鉆孔施工時發生的卡鉆現象重視不夠。
10 月 1~17 日,現場施工卸壓鉆孔曾發生卡鉆現象,施工區隊、防沖辦公室分析認為只是風壓不足的原因,未進行深入分析。龍鄆煤礦勞動組織不合理。3 號聯絡巷綜掘隊施工與防沖卸壓孔施工,沒有研究優化施工的工序和時間;《1303 工作面泄水巷掘進工作面作業規程》中循環圖表未明確卸壓鉆孔施工工序,沖擊地壓發生時,沖擊區域內作業人員數量較多。龍鄆煤礦對個體防護措施落實不嚴格。1303 泄水巷 2 號聯絡巷有 100 米長度區域評價為強沖擊危險區域,現場配備了 10套防沖服,作業人員進入該區域時未穿防沖服。龍鄆煤礦防沖制度修改不及時。沖擊地壓防治管理制度沒有根據《防治煤礦沖擊地壓細則》及時修改完善。龍鄆煤礦防沖安全教育培訓效果差。防沖培訓內容少、針對性差,考試組織不嚴格、不認真,防沖作業人員不掌握基本的崗位防沖知識。龍鄆煤礦對大采深、復雜條件下實體煤掘進巷道沖擊地壓復雜性和危險性認識不足、重視不夠。沒有針對疏放釋水、3煤層分岔合并影響形成的高應力集中進行深入分析,防沖技術措施針對性差。
龍礦集團對龍鄆煤礦采深大、地壘構造、3 煤層分岔合并等產生的高應力集中認識不足,未及時督促龍鄆煤礦對頂板疏放水與地層區域應力調整的影響進行分析研究;防沖技術監督管理工作不嚴格,對龍鄆煤礦存在的勞動組織不合理、防沖個體防護措施落實不嚴格、防沖技術措施針對性差、防沖制度修改不及時等監督檢查不到位。
菏澤市煤炭管理局對沖擊地壓防治安全監管重視不夠,對龍鄆煤礦沖擊地壓防治工作監管不力。負責監管的煤礦均為沖擊地壓礦井,2018 年度執法工作計劃中沒有沖擊地壓專項檢查內容;落實山東省煤炭工業局關于開展沖擊地壓防治專項監督檢查的文件要求不到位;對龍鄆煤礦沖擊地壓防治專項監督檢查不嚴。
《防治煤礦沖擊地壓細則》第二十三條:沖擊地壓礦井必須依據沖擊地壓防治培訓制度,定期對井下相關的作業人員、班組長、技術員、區隊長、防沖專業人員與管理人員進行沖擊地壓防治的教育和培訓,保證防沖相關人員具備必要的崗位防沖知識和技能。
此外,事故還暴露出龍鄆煤礦微震監測信息分析研判能力差的問題。礦井微震監測系統自 10 月 20 日 22 時 37 分 36 秒至 22時37 分 51.79 秒記錄了兩次震動事件,由于兩次震動事件時間間隔小于監測系統原始設定的一次事件的間隔,監測分析人員將第一次事件(能量值為 1.2×102 焦耳)作為本次沖擊地壓的事件進行了能量計算,而沒有發現處于窗口尾部的第二次事件(能量值為 2.2×106 焦耳)。
(三)事故性質
經調查分析認定,本起事故為沖擊地壓引發的生產安全事故
七、責任劃分及處理建議
(一)建議移送紀委監委責任追究人員
王印朋,男,群眾,龍鄆煤礦安監處安監員,負責規程措施落實、違章違規、違反勞動紀律等行為的監督檢查。在工作中未正確履行職責,對現場作業人員數量較多、防沖個體防護措施落實不到位問題監督不力,對事故發生負重要領導責任。依據《安全生產領域違法違紀行為政紀處分暫行規定》(監察部、國家安全監管總局令第 11 號)第十二條之規定,建議給予警告處分。
劉忠偉,男,中共黨員,龍鄆煤礦培訓管理辦公室主任,負責培訓管理工作。在工作中未正確履行職責,對培訓考試組織不嚴格、不認真等問題監督管理不到位,對事故發生負重要領導責任。依據《安全生產領域違法違紀行為政紀處分暫行規定》(監察部、國家安全監管總局令第 11 號)第十二條之規定,建議給予警告處分。
王維斌,男,群眾,工程師,龍鄆煤礦防沖辦公室主管技術員(業務組組長)。作為防沖辦技術工作的直接責任人,在工作中未正確履行職責;對現場施工防沖卸壓鉆孔曾發生的卡鉆現象,沒有引起足夠重視,分析不深入;微震監測信息分析研判不夠,對事故發生負重要領導責任。依據《安全生產領域違法違紀行為政紀處分暫行規定(》監察部、國家安全監管總局令第 11 號)第十二條之規定,建議給予留用察看處分,按照企業規定相應降低職級。
藍慶國,男,中共黨員,龍鄆煤礦綜掘隊隊長。作為本隊安全生產第一責任者,在工作中未正確履行職責,工作面施工勞動組織不合理;未執行進入強沖擊地壓危險區域人員必須穿戴防沖服的規定,對事故發生負重要領導責任。依據《中國共產黨紀律處分條例》第二十八條之規定,建議給予黨內警告處分;依據《安全生產領域違法違紀行為政紀處分暫行規定》(監察部、國家安全監管總局令第 11 號)第十二條之規定,建議給予記大過處分。
王永,男,群眾,龍鄆煤礦防沖辦公室主任。作為防沖安全技術管理的具體負責人,在工作中未正確履行職責,對大采深、復雜條件下實體煤掘進巷道沖擊地壓復雜性和危險性重視不夠;沒有針對疏放釋水、3 煤層分岔合并影響形成的高應力集中進行深入分析,防沖技術措施針對性差;對礦井防沖管理制度修編不及時;對現場施工防沖卸壓鉆孔曾發生的卡鉆現象重視不夠,分析不深入,對事故發生負重要領導責任。依據《安全生產領域違法違紀行為政紀處分暫行規定》(監察部、國家安全監管總局令11 號)第十二條之規定,建議給予警告處分。
徐鋒,男,群眾,龍鄆煤礦安監處副處長,負責防沖驗收組日常管理和卸壓孔工程驗收工作。在工作中未正確履行職責,對現場施工防沖卸壓鉆孔曾發生的卡鉆現象,沒有引起足夠重視,分析不深入,監管不到位,對事故發生負重要領導責任。依據《安全生產領域違法違紀行為政紀處分暫行規定》(監察部、國家安全監管總局令第 11 號)第十二條之規定,建議給予記過處分。
仇海輝,男,中共黨員,龍鄆煤礦防治水副總工程師,負責防治水專業技術管理工作。在工作中未正確履行職責,對煤層頂板砂巖水疏放會導致地層區域性應力調整和重新分布、改變區域內構造的穩定狀態,可能造成覆巖大范圍的結構性改變分析研判不到位,對事故發生負重要領導責任。依據《安全生產領域違法違紀行為政紀處分暫行規定》(監察部、國家安全監管總局令第 11 號)第十二條之規定,建議給予警告處分。
崔建剛,男,中共黨員,龍鄆煤礦安全副總工程師,協助安全監察處處長負責公司安全生產監督管理工作。在工作中未正確履行職責,安全生產監督管理不到位,對勞動組織不合理、個體防護措施落實不嚴等問題失察,對事故發生負重要領導責任。依據《中國共產黨紀律處分條例》第二十八條之規定,建議給予黨內警告處分;依據《安全生產領域違法違紀行為政紀處分暫行規定》(監察部、國家安全監管總局令第 11 號)第十二條之規定,建議給予記過處分。
王風儀,男,群眾,龍鄆煤礦掘進副總工程師,負責掘進專業技術、管理和生產組織協調。在工作中未正確履行職責,對事故地點施工勞動組織不合理失察;對《1303 工作面泄水巷掘進工作面作業規程》中存在未明確卸壓鉆孔施工工序問題審核把關不嚴,對事故發生負重要領導責任。依據《安全生產領域違法違紀行為政紀處分暫行規定》(監察部、國家安全監管總局令第11號)第十二條之規定,建議給予記大過處分。
程建平,男,群眾,龍鄆煤礦防沖副總工程師,協助總工程師負責礦井防沖技術管理工作。在工作中未正確履行職責,對大采深、復雜條件下實體煤掘進巷道沖擊地壓復雜性和危險性重視不夠;沒有針對疏放釋水、3 煤層分岔合并影響形成的高應力集中進行深入分析,防沖技術措施針對性差;未及時修編礦井防沖管理制度,對現場施工防沖卸壓鉆孔曾發生卡鉆現象分析不深入,對微震監測信息分析研判不到位,對事故發生負重要領導責任。依據《安全生產領域違法違紀行為政紀處分暫行規定》(監察部、國家安全監管總局令第 11 號)第十二條之規定,建議給予降級處分。
田昭軍,男,中共黨員,龍鄆煤礦黨委委員、副總經理、總工程師,全面負責公司技術管理工作。作為安全生產技術管理第一責任者,在工作中疏于管理,對大采深、復雜條件下實體煤掘進巷道沖擊地壓復雜性和危險性認識不足、重視不夠;對礦井防沖管理制度修編不及時、微震監測信息分析研判不夠、防沖技術措施針對性差、巷道支護強度不能承受強動載沖擊、《1303 工作面泄水巷掘進工作面作業規程》沒有明確掘進和卸壓鉆孔施工工序等問題失察,對事故發生負主要領導責任。依據《中國共產黨紀律處分條例》第二十八條之規定,建議給予撤銷黨內職務處分;依據《安全生產領域違法違紀行為政紀處分暫行規定》(監察部、國家安全監管總局令第 11 號)第十二條之規定,建議給予撤職處分,按照企業規定相應降低職級。
孫培杰,男,中共黨員,龍鄆煤礦副總經理、安全監察處處長、安全總監(兼),負責公司安全生產監督管理和安全培訓工作。在工作中疏于管理,對勞動組織、安全管理、安全培訓等問題失察,對事故發生負重要領導責任。依據《中國共產黨紀律處分條例》第二十八條之規定,建議給予黨內嚴重警告處分;依據《安全生產領域違法違紀行為政紀處分暫行規定》(監察部、國家安全監管總局令第 11 號)第十二條之規定,建議給予記大過處分。
宋文德,男,中共黨員,龍鄆煤礦黨委委員、副總經理,協助總經理履行安全生產職責,分管調度室和采掘區隊。在工作中疏于管理,對大采深、復雜條件下實體煤掘進巷道沖擊地壓復雜性和危險性認識不足、重視不夠;對事故地點勞動組織不合理、巷道支護強度不能承受強動載沖擊等問題失察,對事故發生負主要領導責任。依據《中國共產黨紀律處分條例》第二十八條之規定,建議給予撤銷黨內職務處分;依據《安全生產領域違法違紀行為政紀處分暫行規定(》監察部、國家安全監管總局令第 11 號)第十二條之規定,建議給予撤職處分,按照企業規定相應降低職級。
李仁新,男,中共黨員,龍鄆煤礦公司執行董事、黨委委員、法定代表人、總經理,負責公司行政全面工作,安全生產第一責任者。在工作中疏于管理,對大采深、復雜條件下實體煤掘進巷道沖擊地壓復雜性和危險性認識不足、重視不夠;對勞動組織、安全管理、安全培訓等方面的問題失察,對事故發生負主要領導責任。且在事故發生后未在規定時限內向有關部門報告。
依據《中國共產黨紀律處分條例》第二十八條之規定,建議給予撤銷黨內職務處分;依據《安全生產領域違法違紀行為政紀處分暫行規定》(監察部、國家安全監管總局令第 11 號)第十二條和《中華人民共和國安全生產法》第一百零六條第二款①之規定,建議給予撤職處分,按照企業規定相應降低職級,終身不得擔任本行業生產經營單位的主要負責人。
潘忠敏,男,中共黨員,龍鄆煤礦黨委書記,主持公司黨委全面工作,負責組織宣傳貫徹黨和國家安全生產方針政策、法律法規。在工作中沒有正確履行職責,安全思想教育工作不到位,對事故發生負重要領導責任。依據《中國共產黨紀律處分條例》第二十八條之規定,建議給予撤銷黨內職務處分,按照企業規定相應降低職級。
徐召錕,男,群眾,龍礦集團工程建設有限公司勘探測量分公司防沖項目部技術主管,負責項目部技術管理、安全培訓、工程質量管理等工作。在工作中未正確履行職責,對現場施工防沖卸壓鉆孔曾發生的卡鉆現象,沒有引起足夠重視,分析不深入,對本部門職工防沖業務教育培訓不到位,對事故發生負重要領導責任。依據《安全生產領域違法違紀行為政紀處分暫行規定》(監察部、國家安全監管總局令第 11 號)第十二條之規定,建議給予降級處分。
孫鵬飛,男,中共黨員,龍礦集團工程建設有限公司勘探測量分公司防沖項目部經理,負責項目部安全生產、技術管理等工作。在工作中未正確履行職責,對現場施工防沖卸壓鉆孔曾發生的卡鉆現象沒有引起足夠重視,分析不深入;對本部門職工教育培訓不到位,對事故發生負重要領導責任。依據《中國共產黨紀律處分條例》第二十八條款之規定,建議給予黨內嚴重警告處分;依據《安全生產領域違法違紀行為政紀處分暫行規定》(監察部、國家安全監管總局令第 11 號)第十二條之規定,建議給予留用察看處分,按照企業規定相應降低職級。
李修杰,男,中共黨員,龍礦集團生產技術部技術室主任,負責防沖規劃(計劃)及重要技術方案審批,組織開展頂板管理、礦壓治理,監督檢查采掘及防沖作業規程、技術措施編制與執行。在工作中疏于管理,對龍鄆煤礦存在的礦井防沖管理制度修編不及時、防沖技術措施針對性差和掘進工作面作業規程存在的問題失察,對事故發生負重要領導責任。依據《安全生產領域違法違紀行為政紀處分暫行規定》(監察部、國家安全監管總局令第 11 號)第十二條之規定,建議給予警告處分。
王泮飛,男,中共黨員,龍礦集團副總工程師、技術部部長(兼),協助總工程師負責集團公司技術管理和防沖技術監管工作。在工作中疏于管理,對大采深、復雜條件下實體煤掘進巷道沖擊地壓復雜性和危險性認識不足、重視不夠;對龍鄆煤礦存在的礦井防沖管理制度修編不及時、防沖技術措施針對性差、個體防護措施落實不嚴等問題失察,對事故發生負重要領導責任。依據《安全生產領域違法違紀行為政紀處分暫行規定》(監察部、國家安全監管總局令第 11 號)第十二條之規定,建議給予警告處分。
王立寶,男,中共黨員,龍礦集團黨委委員、副總經理、總工程師,是集團安全生產技術管理第一責任人,全面負責集團技術管理工作。在工作中疏于管理,對大采深、復雜條件下實體煤掘進巷道沖擊地壓復雜性和危險性認識不足、重視不夠;對龍鄆煤礦存在的勞動組織不合理、防沖安全管理制度執行不嚴格等問題失察,對事故發生負重要領導責任。依據《安全生產領域違法違紀行為政紀處分暫行規定》(監察部、國家安全監管總局令第11號)第十二條之規定,建議給予警告處分。
楊躍林,男,中共黨員,龍礦集團黨委副書記、總經理,全面負責落實企業安全生產工作。對龍鄆煤礦沖擊地壓防治方面存在的問題失察,對事故發生負重要領導責任。依據《安全生產領域違法違紀行為政紀處分暫行規定》(監察部、國家安全監管總局令第 11 號)第十二條之規定,建議給予記過處分。
陳家忠,男,中共黨員,龍礦集團黨委書記、董事長,企業法定代表人,企業安全生產第一責任人,全面負責企業安全生產與職業病危害防治工作。對龍鄆煤礦沖擊地壓防治方面存在的問題失察,對事故發生負重要領導責任,依據《安全生產領域違法違紀行為政紀處分暫行規定》(監察部、國家安全監管總局令11 號)第十二條之規定,建議給予警告處分。
高翔,男,中共黨員,時任菏澤市煤炭管理局黨組成員、副局長。負責煤礦安全、職業衛生健康、行政執法、指揮調度、應急救援等工作。未認真履行職責,對龍鄆煤礦沖擊地壓防治的安全監管重視不夠、監管不力,對沖擊地壓防治專項監督檢查不嚴不細、流于形式,對違法違規行為處理處罰不嚴格、不規范,對事故發生負重要領導責任。依據《安全生產領域違法違紀行為政紀處分暫行規定》(監察部、國家安全監管總局令第 11 號)第十七條之規定,建議給予記過處分。
宋述亮,男,中共黨員,時任菏澤市煤炭管理局黨組書記、局長,主持菏澤市煤炭管理局全面工作。對龍鄆煤礦沖擊地壓防治安全監管重視不夠、監管不力,落實上級關于開展沖擊地壓防治專項監督檢查的要求不到位,對龍鄆煤礦安全監管不嚴格、不規范問題失察,對事故發生負重要領導責任。依據《安全生產領域違法違紀行為政紀處分暫行規定》(監察部、國家安全監管總局令第 11 號)第十七條之規定,建議給予警告處分。
(二)建議給予行政處罰的單位和個人
事故單位。
龍鄆煤礦發生重大沖擊地壓事故,依據《中華人民共和國安全生產法》第一百零九條第三項①規定,建議給予罰款人民幣 500 萬元的行政處罰。
有關個人。
龍鄆煤礦執行董事、黨委委員、法定代表人、總經理李仁新對龍鄆煤礦發生的重大沖擊地壓事故負有主要領導責任,且未在規定時限內向有關部門報告。依據《中華人民共和國安全生產法》第九十二條第三項②建議給予行政罰款 46.9萬元,依據《中華人民共和國安全生產法》第一百零六條第二款規定,建議給予行政罰款 46.9萬元,建議對其給予合并行政罰款 93.8 萬元。
(三)其他處理建議
龍礦集團對龍鄆煤礦在沖擊地壓防治方面存在的問題檢查指導不到位,山東能源對權屬二級企業龍礦集團在沖擊地壓風險防范方面指導不夠。建議責成龍礦集團向山東能源作出深刻檢查,山東能源向山東省人民政府作出深刻檢查。
八、事故防范措施及建議
(一)嚴格落實企業主體責任
煤礦企業要嚴格落實沖擊地壓防治工作主體責任,要以沖擊地壓防治安全為前提,科學制定生產經營指標,凡經沖擊地壓危險性評價不能保證安全開采的區域,嚴禁安排組織開拓開采。主要負責人要認真落實沖擊地壓防治第一責任人的責任,對沖擊地壓防治工作全面負責;其他負責人要認真落實分管范圍內沖擊地壓防治責任;總工程師要認真落實沖擊地壓防治技術責任。
(二)加強和改進沖擊地壓防治工作
礦井要嚴格限制開采深度,遵守國家有關規定,深度超過一千米的工作面開采前應當組織專家進行安全性論證,不能保證安全開采的,不得開采。要嚴格限制開采強度,不得核增產能,嚴格按照設計的采掘工作面個數組織生產,嚴格控制采掘工作面推進速度。要嚴格限制勞動定員,掘進工作面進入人員不得超過 9 人,采煤工作面進入人員不得超過 16 人,現場實行掛牌管理,超員人員一律不得擅自進入。2019 年底,所有的采煤工作面原則實現智能化無人開采,煤巷掘進工作面應實現遠距離操控和鉆孔施工機械化、自動化。
(三)加強地質構造及疏放水對沖擊地壓影響的研究。一是加強區域構造應力與構造活動規律的研究;二是加強對厚表土斷塊型地壘構造條件下開采覆巖結構、圍巖移動、圍巖應力場的演化規律、礦壓顯現規律研究;三是加強頂板巖層疏放水可能導致采場覆巖結構與周圍應力場改變對沖擊地壓的影響規律研究,合理選擇礦井水的治理方式,優先選用自然疏水和鉆孔疏水方式;四是加強巷道貫通期間沖擊地壓防治措施研究,掌握應力調整規律,采取有針對性防治措施。
(四)加強巷道防沖支護
沖擊危險區域的巷道必須采取加強支護措施,采煤工作面巷道超前支護要加大支護范圍和支護強度,采用液壓支架支護;有沖擊危險的掘進巷道應加強支護研究,根據巷道圍巖與支護結構的破壞狀況,深入分析圍巖沖擊破壞特征與支護失效機制,探索進一步提高巷道防沖支護強度的措施;中等以上沖擊危險區的厚煤層托頂煤掘進巷道除了采取抗沖擊主動支護方式外,還應當采取可縮式 U 型鋼棚、液壓支架等加強支護。
(五)優化礦井開拓布局
針對礦井實際開采條件,優化礦井的開拓布局、回采巷道布置、開采順序、煤柱留設、采煤方法、采掘工藝等,選擇合理的采掘推進速度和開采強度,避免形成高應力集中區。新開拓及新采區準備巷道布置層位應充分考慮地應力因素,不得布置在有沖擊危險性的煤層中;礦井禁止開采孤島工作面。
(六)強化防沖監測預警能力建設
進一步提高技術人員對微震監測、鉆屑法檢測、應力在線監測等數據綜合分析研判能力,提升預測、預判、預警水平,同時要加強對各類監測系統的檢測、檢驗和日常維護,為沖擊地壓防治工作提供技術支撐。
(七)加強防沖安全教育培訓
建立并嚴格落實沖擊地壓防治培訓制度,定期對礦長、技術負責人、管理人員和防沖專業人員、現場作業人員進行沖擊地壓防治知識教育培訓,確保相關人員具備必要的崗位防沖知識和技能。
(八)強化復產措施落實
礦井恢復生產前,要制定恢復生產方案,通過專家論證,落實綜合防沖措施,消除沖擊危險后,方可恢復生產。
(九)切實加強安全監管監察
各級地方政府要進一步加強對煤礦安全生產工作的管理。煤礦安全監管監察部門要加強安全執法,創新監管監察方式方法,提高執法能力和水平,要針對煤礦開采煤層埋藏深、壓力大、受沖擊地壓威脅嚴重的實際,督促煤礦落實防沖措施;認真開展煤礦安全“體檢”工作,查找存在的安全隱患和薄弱環節,提高監管監察的針對性和實效性
